CEDN > Diagnostics techniques du bâtiment > Déchets (PEMD) > Diagnostic déchets avant démolition de la piscine du Transat – 76420 BIHOREL
Retour

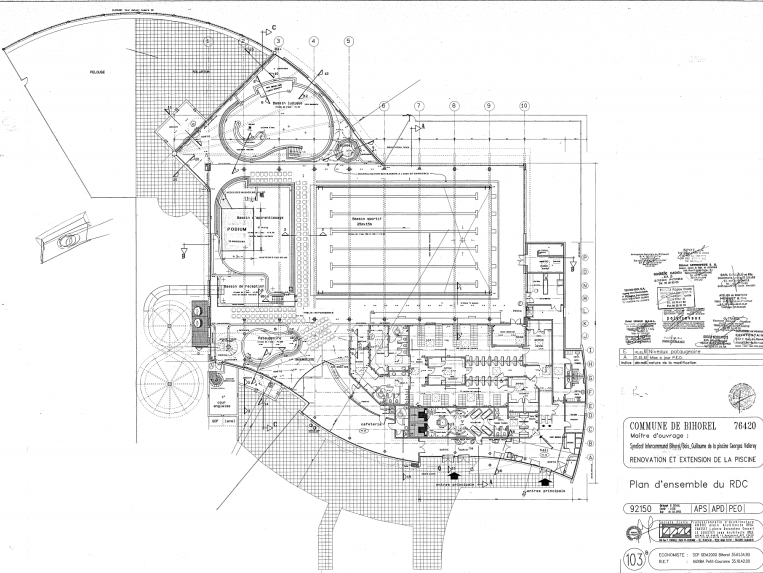
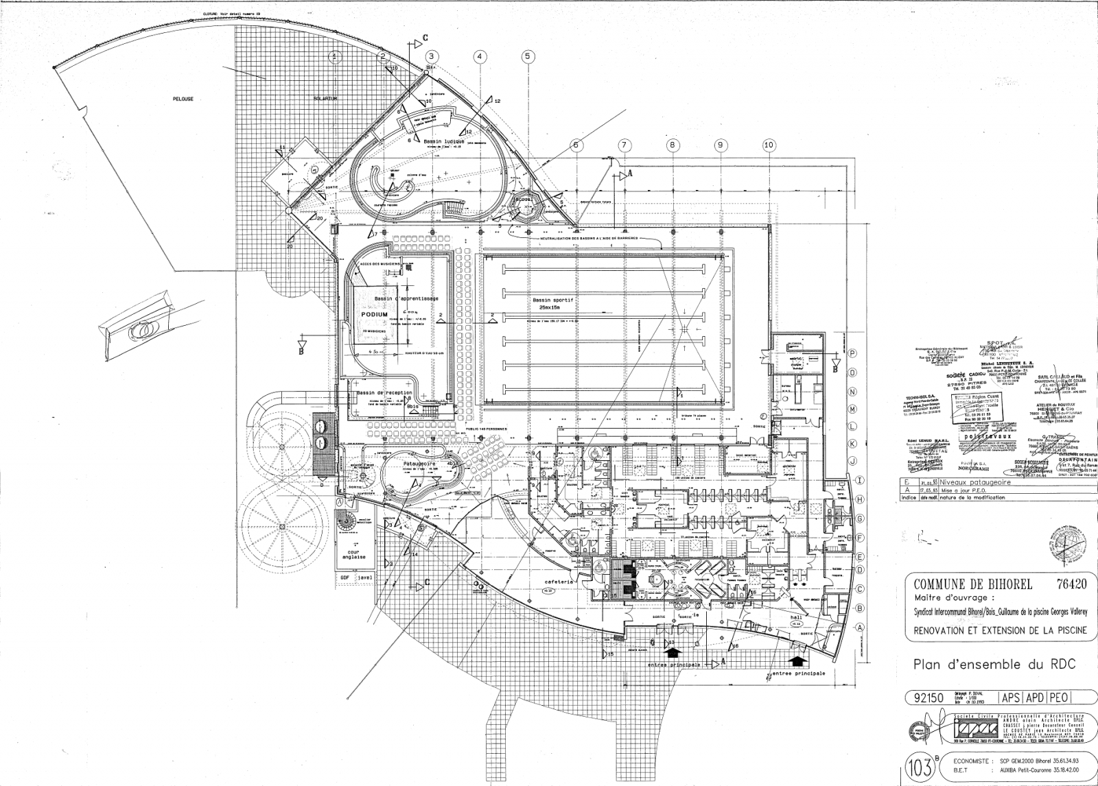
Diagnostic déchets avant démolition de la piscine du Transat – 76420 BIHOREL

La Mairie de Bihorel a chargé la société CEDN d'une mission de diagnostic déchets de l’ensemble de la piscine du Transat avant démolition située rue de Verdun à Bihorel (76).

L’objectif de ce diagnostic déchet permet de déterminer la nature, la quantité et la localisation des matériaux et produits de construction qui donneront lieu à des déchets à évacuer et éventuellement à recycler.

À la suite, il permet au maître d’ouvrage de lancer les consultations auprès des entreprises chargées des travaux de démolition (Curage, désamiantage, déplombage…)

Si vous souhaitez également un diagnostic portant sur la gestion des déchets issus de la démolition de bâtiments suivant le nouveau décret n° 2021-821 du 25 juin 2021, contactez nous par téléphone ou par mail.

Nous intervenons en Seine Maritime, Eure, Somme, Calvados, Orne, Yvelines...

 

 

 
Nous écrire
Les champs indiqués par un astérisque (*) sont obligatoires
Certification Abcidia
Certification Abcidia
Intervention rapide
Intervention rapide
Assurance décennale et aviation
Assurance décennale et aviation
Qualifications OPQIBI
Qualifications OPQIBI
Ils nous font confiance
Nous écrire